How To Create CCTV Network Diagram
Closed-circuit television (CCTV) uses cameras and monitors to carry out video surveillance. Unlike broadcast television this system has only local signal. It is a feature of almost every video camera, yet CCTV is mainly a system for visual control of certain areas such as banks, airports, supermarkets, and other places for security reasons.
CCTV is often used to control production process, especially when people are recommended to stay away from the area (due to dangerous or unhealthy conditions). CCTV may work non-stop or during set periods of time, or watching a definite area and event. Another type of CCTV is digital video recorder (DVR). These devices vary in quality and features: motion detection, email or cell phone messaging etc. CCTV is widely used to observe public areas worldwide.
However, developing and installing CCTV system is a time-consuming process. It also requires certain knowledge and skills. ConceptDraw is a solution of setting video cameras rationally. You can achieve two aims at once: CCTV Design Tool saves your time and your money and helps you make professional video surveillance system.
- Launch ConceptDraw DIAGRAM
- Set a page orientation: File – Page Setup – Horizontal Orientation – Ok.
- Floor Plan Layer.
- Open Inspectors – Double click on the layer – Change name.
- In the Floor Plans Solution open the libraries containing the necessary shapes:
- Doors
- Walls, shell and structure
- Windows
- Using the necessary objects, create a floor plan.
- File – Document Properties – Page Size – Adjust to Drawing Contents – Ok.
- Select the floor plan (Cmd +A).
- Open Inspectors – Line tab – Change color.
- Windows Layer.
- Inspectors – Layers tab – Select another layer for the next part of the drawing.
- Lock the previous layer.
- Open the Windows library. Place the Window objects on your floor plan.
- Select all windows (Cmd+A). Open Inspectors – Line tab – Change color.
- Doors Layer.
- Inspectors – Layers tab – Select another layer for the next part of the drawing.
- Lock the previous layer.
- Open the Doors library. Place the Door objects on your floor plan.
- Use Action Menu of the object for easier work.
- Select all the Door objects – Change color using Inspectors – Line tab.
- Rooms Layer.
- Inspectors – Layers tab – Add a New Layer using plus icon (+).
- Lock the previous layer.
- Double click on the white space of the page – enter room name – move the Text box to the needed part of the floor plan.
- To edit text, select it and open the Text tab in Inspectors.
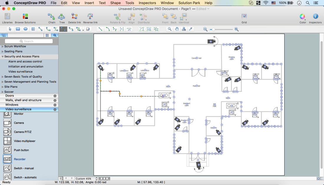
- Cameras Layer.
- Inspectors – Layers tab –Add a New Layer using plus icon (+).
- Lock the previous layer.
- In the Security and Access Plans Solution open the Video Surveillance library.
- Take the Camera object – Place it on the floor plan.
- Use Rotation dot to rotate the object. Use Control dots to resize it.
- Open Color menu from the Toolbar – Shape Color – Change color.
- Holding down the Option key (ALT), copy the object. Place it on the diagram.
- Take Camera P/T/Z object from the library. Place it on the floor plan.
- Use Rotation dot to rotate the object. Use Control dots to resize it.
- Open Color menu from the Toolbar – Shape Color – Change the color.
- Holding down the Option key (ALT), copy the object. Place it on the diagram.
- File – Document Properties – Page Size – Adjust to Drawing Contents – Ok.
- Use needed objects from the library, place them on the floor plan.
- Select the objects, holding down the Shift key, click successively on the needed objects.
- Open Inspectors – Line tab – Change color
- Using Direct and Smart Connectors from the Toolbar connect Camera objects.
- Open the Line tab in Inspectors. Set End points, select color.
- Using yellow dots on Smart Connector you can move it.
- Now your Drawing is ready.
- You may save it or export to different formats via the File menu.
The possibility of exporting to variety of popular graphical formats (PNG, JPEG, JPG, GIF, TIF, TIFF, BMP, DIB, EMF, SVG) and file formats, such as Microsoft PowerPoint (PPT), Adobe Acrobat (PDF), Microsoft Visio (VDX, VSDX), Adobe Flash (SWF), Encapsulated PostScript (EPS), HTML, opens wide opportunities for you.
Video. How To Create CCTV Network Diagram (02 min 42 sec)





































